CJD50-Z ІІ双斗重力式包装机

技术参数:
1、适用物料:流动性好的粉状或颗粒状物料
2、给料方式:重力自动落料
3、称量范围:10~50kg
4、包装速度:10~14袋/分钟
5、计量精度:±0.2%F.S(与物料均匀度及包装速度有关)
6、仪表用气:0. 5~0.7MPa ,0.3 m³ /min
7、除尘气源:-2kPa , 900 m³/h
8、电 源:AC220V / 50Hz / 0.3kW
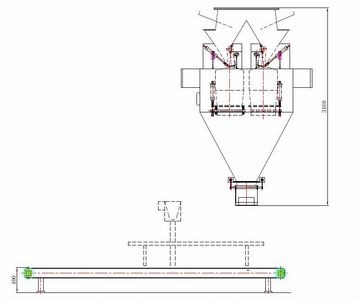
9、外形尺寸:厂度1800×宽度800×高度4650(参考尺寸,单位:mm); 进料口:直径300mm
产品特点:
物料由自身重力落料。加料控制采用气动双速阀门,速度快,计量准确。放料采用气动对开门,动作快,放料干净。
与其它机型相比,具有包装速度高、稳定度高、功耗小的特点。目前大量应用于食品、化肥、种子与树脂等行业。
使用方法:
由操作人员套上包装袋时顺便触发开关,包装机开始自动完成夹袋、放料过程,包装好的袋子自动脱落。该包装机配有两只独立计量的计量斗,可智能自动补料和放料,包装速度相比单斗重力包装机可成倍提高。
扩展性:
通常需配装皮带(网链)输送机、缝包机,以节省人力,提高包装效率。
主机为半自动包装机,加装自动套袋机和自动封口机等设备后,可升级为全自动包装机。
上一个产品:CJD50-ZD振动式包装机
下一个产品:CJD50-Z І单斗重力式包装机


