
技术参数:
1、适 用 物 料:流动性较好的粉料
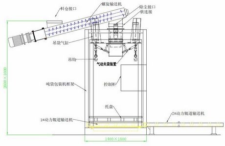
2、给 料 方 式:螺旋给料
3、称 量 范 围:200~1000kg
4、包 装 速 度:10~15袋/小时(与物料有关)
5、计 量 精 度:1000kg±1kg
6、压缩空气气源:0. 5~0.7MPa , 0.2-0.5 m³/min
7、除 尘 风 源:-1kPa,800 m³/h
8、电 源:AC380V+N+E / 50Hz / 约3.2kW(因配置不同,存在差异)
9、外形尺寸:长2500宽1800高2800(参考尺寸,单位:mm)
产品特点:
物料由变频控制的螺杆输送到包装袋内,采用智能多段速度控制加料精度。与其它机型相比,具有包装重量大、稳定度高、功耗小、精确度高的特点。目前已长期成功应用国内颜料、石化等行业。
使用方法:
由操作人员套上包装袋后按允加按钮,包装机开始自动夹袋和变频螺旋式加料,重量达到设定值时,自动结束加料并松开包装好的袋子。操作人员人工捆扎袋口后取走包好的袋子,套上新袋后重复上述过程可进行下一次包装。
扩展性:
1、用户可装配自动夹袋装置,减少人员工作量。
2、用户可根据需要,选购电动辊道,进一步减少人员工作量。
3、物料中含气量较高时,可加装振动托盘,以排出部分空气、提高包装密实度。