
技术参数:
1、适用物料:超细、超轻粉体
2、给料方式:真空给料
3、称量范围:5~25kg
4、包装速度:2~4袋/分钟(与物料、包装袋和操作方法有关)
5、计量精度:±50~100g(与物料均匀度及包装速度有关)
6、仪表用气:0. 5~0.7MPa , 0.25 m³/min
7、真空气源:-0.04~-0.08MPa ,4kW
8、除尘气源:-5~-2kPa , 1000 m³/h
9、电 源:AC380V+N+E / 50Hz / 1.6kW(不含真空泵)
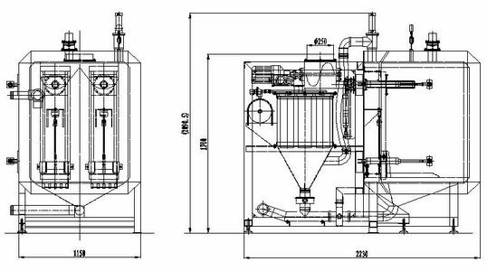
10、外形尺寸:长1995宽1000高1600进料口直径300(参考尺寸,单位:mm)
产品特点:
2只包装袋同时放在密封的真空箱中,整个箱体先抽真空,再打开进料阀,物料直接被真空吸入包装袋中,与常规真空包装机相比,具有包装速度快、包装密实度较高、无扬尘的特点。特别适用于包装空间紧凑,包装速度要求较高的场合。
目前已长期成功应用于颜料、白炭黑、色素炭黑、超细活性碳、超细添加剂、超细膨润土、超细碳酸钙、建筑胶粉等行业。
使用方法:
人工套袋后按“允加”按钮,包装机自动胀紧包装袋袋口,关上真空箱门,打开真空阀门,对真空箱进行抽真空,延时数秒后,打开双速气动加料阀进行快速加料,重量接近设定值时自动减速,进行精确加料,至定量设定值时停止加料,真空阀关闭,放空阀打开,真空箱门自动打开,胀袋装置自动松开袋口。人工取走包装袋并套上新袋后可开始下一次包装。
说明:
包装过程中,操作人员只需做套袋和取袋的动作,包装机可自动完成复杂的抽真空过称,无需人工干预。
采用错位打孔包装袋时,包装效果最佳。
主机为半自动包装机,加装自动套袋机和自动卸袋装置后,可升级为全自动包装机。